freistehendes Einfamilienhaus u.Mehrfamilienhaus auf 1 Grundstück
Informationen zur Immobilie:
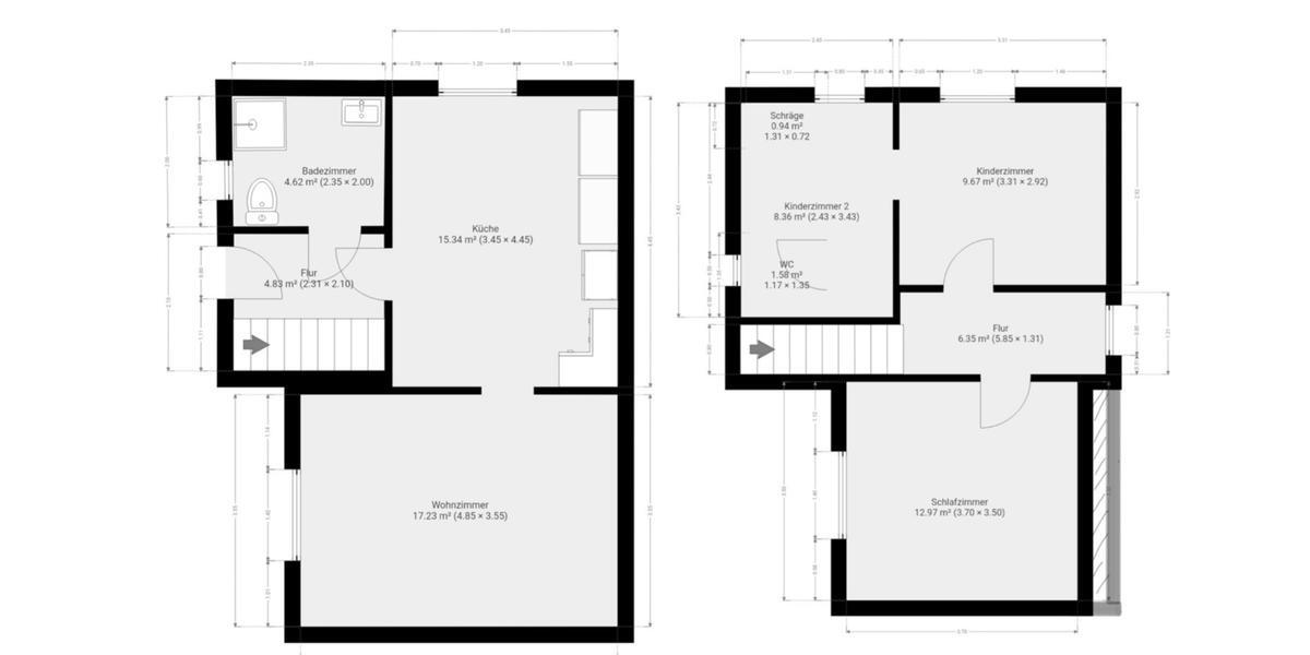
Zimmeranzahl
10
Grundstücksgröße
559,00 m²
Ort
45966 Gladbeck
Objektart
Haus
Größe
ca. 225,00 m²
389.000 €
Beschreibung:
Mehr zum Angebot freistehendes Einfamilienhaus u.Mehrfamilienhaus auf 1 Grundstück:
Dieses einzigartige Angebot vereint ein historisches Mehrfamilienhaus (Baujahr 1929) und ein freistehendes Einfamilienhaus (Baujahr 1947) mit überdachter Terrasse und Garten auf einem zentral gelegenen Kaufgrundstück mit ca. 559 m² Fläche... mehr erfahren
Dieses einzigartige Angebot vereint ein historisches Mehrfamilienhaus (Baujahr 1929) und ein freistehendes Einfamilienhaus (Baujahr 1947) mit überdachter Terrasse und Garten auf einem zentral gelegenen Kaufgrundstück mit ca. 559 m² Fläche... mehr erfahren
weitere Häuser